.
MATERIALI CORSO
.
arch. Carmela Palmieri
– LEZIONE 1: Il quadro legislativo di riferimento e la sua evoluzione
– LEZIONE 1: Modulo raccolta dati per Attestato di Prestazione Energetica
– LEZIONE 1: Guida Portale Abruzzo – APE
– LEZIONE 1: Guida Operativa notariato – APE
– LEZIONE 1: Rapporto CTI 2013 stato attuazione certificazione energetica
– LEZIONE 2: La trasmissione del calore
– LEZIONE 2: Il Bilancio Energetico
– LEZIONE 3: L’involucro opaco verticale
– LEZIONE 3: Solai
– LEZIONE 3: Coperture
– LEZIONE 3: Involucro trasparente
– LEZIONE 3: Termointonaci
– LEZIONE 3: materiali isolanti e certificazione
– LEZIONE 7: La diagnosi energetica – parte 1
arch. Fabio Armillotta
– LEZIONE 7: La diagnosi energetica – parte 2
.
ing. Pierluigi Fecondo
– LEZIONE 4: Impianti termici
– LEZIONE 5: Le fonti rinnovabili
– LEZIONE 6: Confort abitativo e ventilazione
arch. N.Marco Santomauro
– LEZIONE 8: Esercitazione Edificio Esistente
– LEZIONE 8: Scheda raccolta dati
– LEZIONE 8: Foto edificio
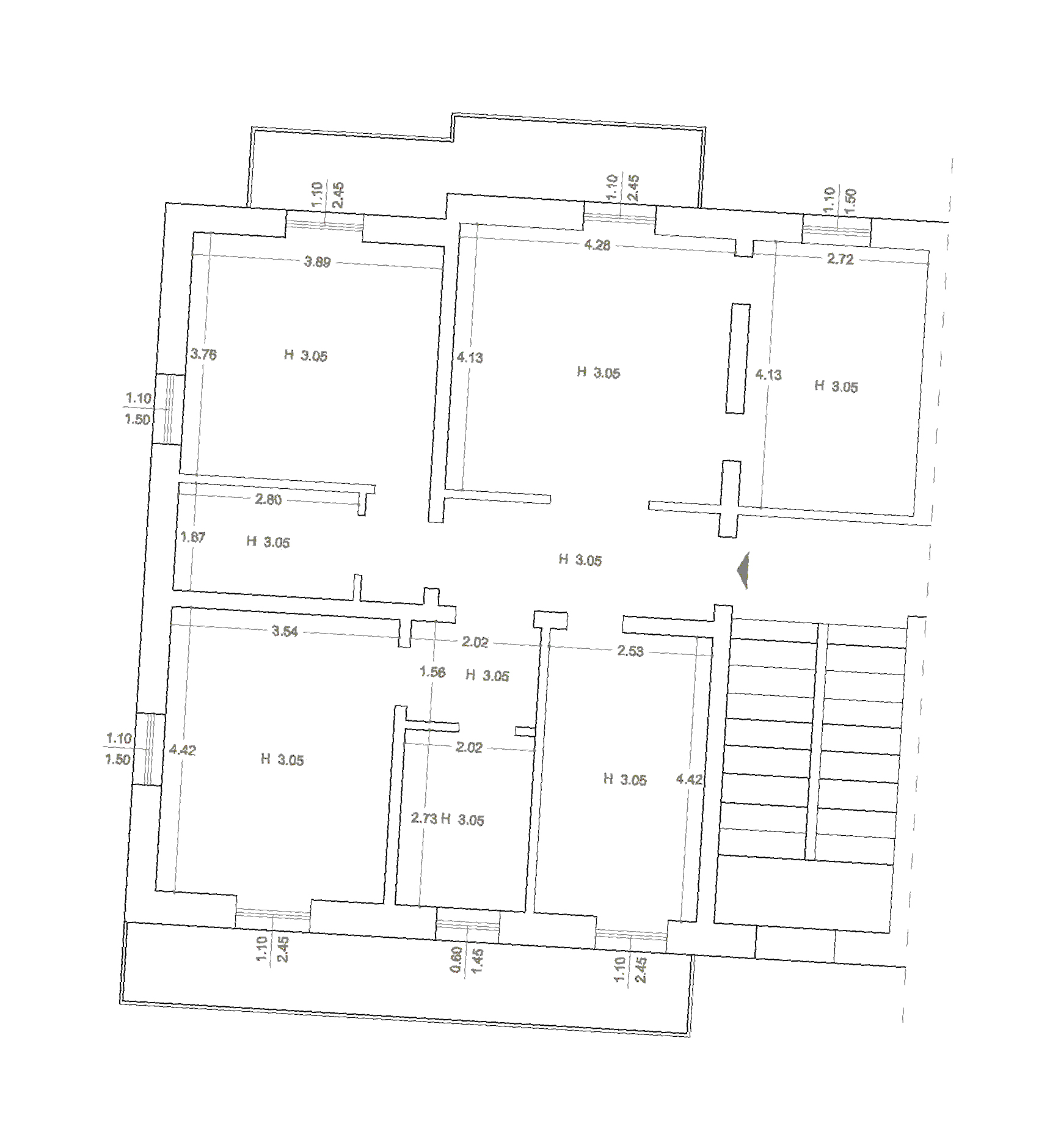
– LEZIONE 8: Pianta abitazione
– LEZIONE 8: Calcolo rientri economici
– LEZIONE 8: Dichiarazione d’indipendenza
– LEZIONE 8: ACCA software – TERMUS trial version
– LEZIONE 8: Guida A – la legislazione per il risparmio energetico



